Grange Delage

Projet : rénovation d’une grange de Village
Localisation : Mont (65)
Altitude : 1265 m
Année de livraison : 2025
Maîtrise d’ouvrage : privée
Mission : complète
Spécificité : rénovation / diagnostic existant


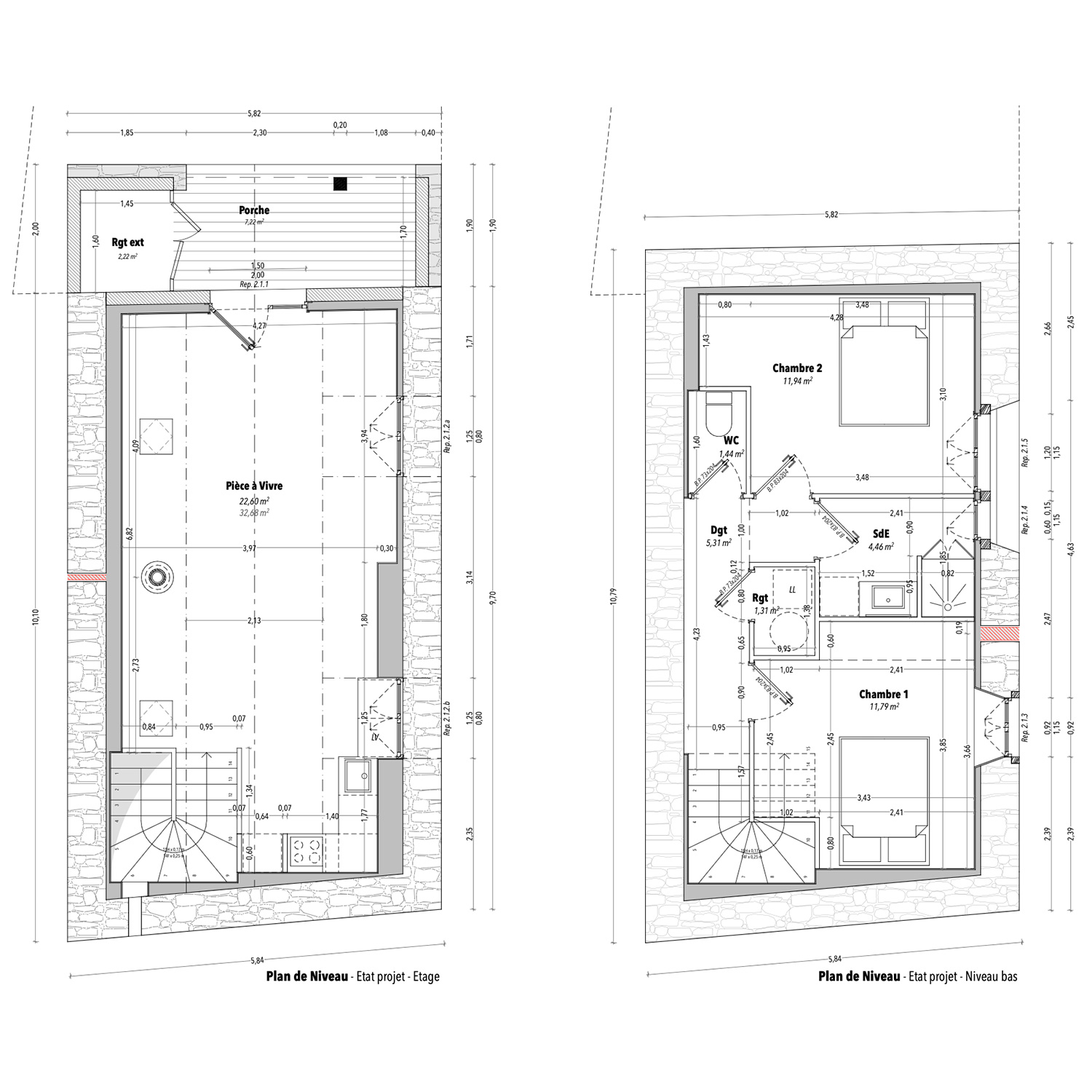
La grange Delage appartient à la commune de Mont. L’objectif ici est de la rénover pour y créer un logement pouvant accueillir à l’année un jeune couple ou une petite famille. Au vu des dimensions des volumes existants, choix a été fait de trouver deux chambres confortables avec salle d’eau et WC sur le niveau bas. L’étage, sous plafond rampant, donnant sur le jardin au niveau de la rue, est quant à lui dédié à la pièce de vie. En accord avec les Architectes des Bâtiments de France, une avancée de toit va être créée afin d’abriter l’entrée et de créer un rangement extérieur, indispensable pour vivre confortablement en montagne. Le chantier est en cours, livraison prévue courant 2026.